Ventura Village Green
6500 Telephone Road, Ventura, CA 93003
Amenities
- Lots of grassy areas for children to play.
- Large children’s play structure.
- Separate swing set area.
- Basketball court.
- Half a mile to shopping and markets.
- One mile from Ventura Aquatic Center.
- 5 minutes from Pacific View Mall.
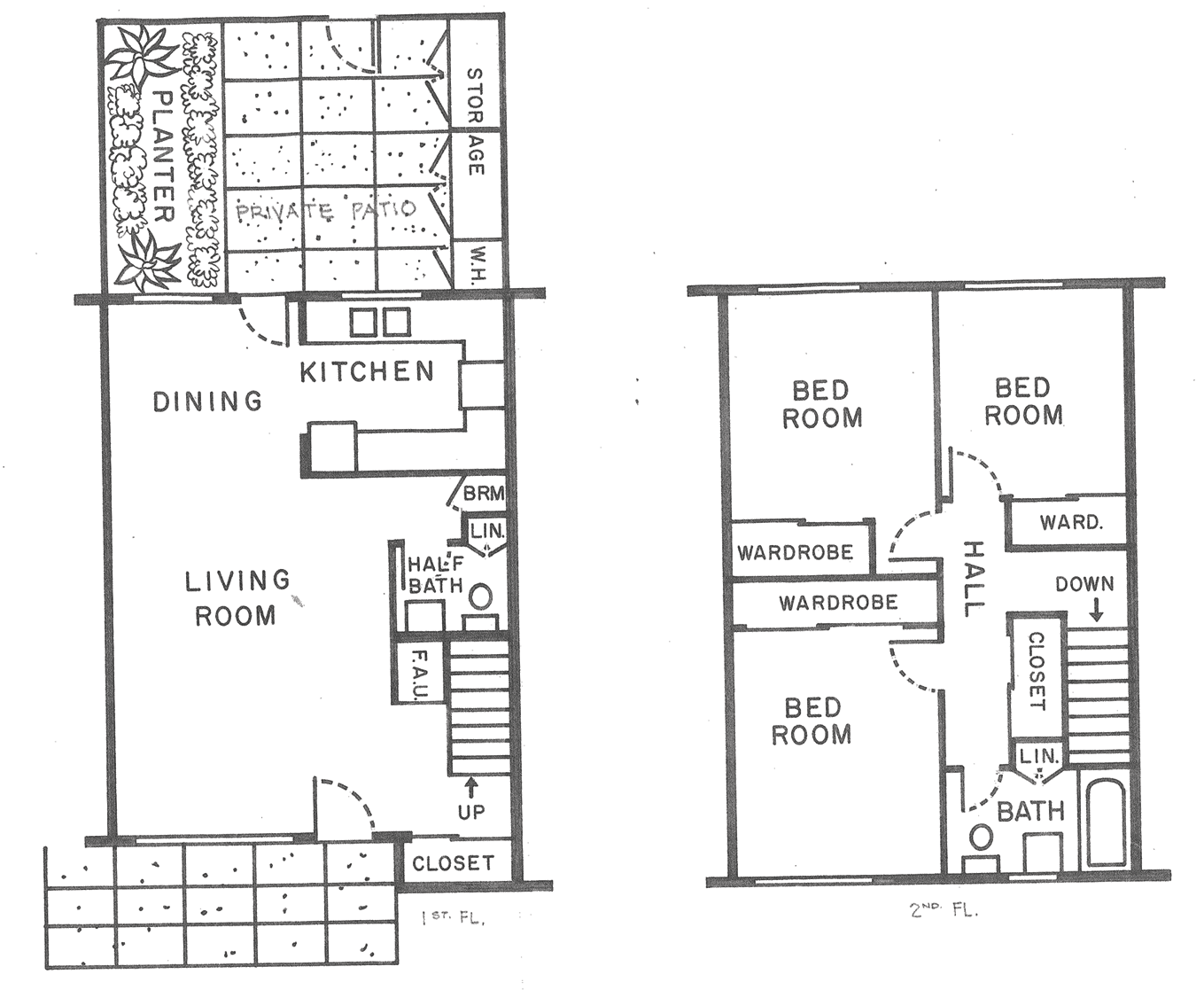
Apartments Include:
- Spacious bedrooms with large closets.
- Wall to wall carpet.
- Dining room ceiling fan.
- Dishwasher.
- Microwave.
- Large dining room windows.
- Ground floor units have Individual fenced in patios with storage lockers.
- Second floor units have balconies with storage lockers.
- One dedicated carport space.
On-Site Services:
- Rental Office
- Clubhouse
- Eight laundry rooms for tenants’ exclusive use.
- Responsive maintenance crew.















